3.5 Zimmer Wohnung in Fidaz
Adresse 
Preis 
reserviert
Eckdaten 
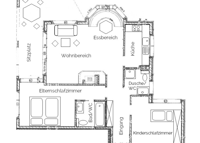
Zimmer: 3.5
Nasszellen: 1 Bad/WC und 1 Dusche/WC
Fläche: ca. 66m2
Stockwerk: EG
Baujahr: 1988
Parkplatz: Einzel-Garagenbox
Verfügbar ab: reserviert
Beschreibung
Entdecken Sie diese wunderschöne 3.5-Zimmer-Wohnung im Erdgeschoss eines gepflegten Hauses aus dem Jahr 1988 in der idyllischen Gemeinde Fidaz. Mit ca. 66 m² Wohnfläche bietet diese Immobilie den perfekten Rückzugsort in den Bündner Bergen.
Die Wohnung überzeugt mit:
- Grosszügiger Grundriss: Wohnzimmer, Küche, 2 Schlafzimmer und 2 Bäder bieten optimalen Wohnkomfort
- Gemütliches Schlafzimmer: Mit Holzboden, Holzschrank und stimmungsvoller Beleuchtung
- Private Terrasse: Perfekt zum Entspannen und Geniessen der Bergluft
- Spektakuläre Aussicht: Blick auf den See umgeben von schneebedeckten Bergen und Kiefern
- Moderne Ausstattung: Cheminée, Geschirrspüler und Kabelfernsehen
- Garage: Für bequemes und sicheres Parkieren
Lage und Umgebung: Diese ruhige Wohnung liegt in einer malerischen Bergregion, umgeben von anderen charmanten Häusern. Die Nähe zu einem Fluss und die ruhige Atmosphäre machen diesen Ort zu einem wahren Paradies für Naturliebhaber. Die Bushaltestelle Fidaz ist in wenigen Gehminuten erreichbar.
Diese Immobilie eignet sich hervorragend als Feriendomizil, Zweitwohnsitz oder für alle, die das Leben in den Bergen schätzen. Die Kombination aus traditioneller Bündner Architektur mit Holzfassade und weissen Wänden sowie modernem Wohnkomfort macht diese Wohnung zu einem besonderen Angebot.





















